Verkocht onder voorbehoud

Buitenplaats Kennemer | Zandvoort

Burgemeester Nawijnlaan 38

Koopsom

€ 1.300.000 v.o.n.

Oplevering

2026

Energielabel

A++

Woonoppervlakte

201 m²

Inhoud

772 m³

Aantal kamers

7

Aantal slaapkamers

5

Aantal badkamers

3

Ontdek dit exclusieve herenhuis op Buitenplaats Kennemer: een kleinschalig project met slechts vier luxe twee-onder-een-kapwoningen. Deze woning bevindt zich op een schitterende, groene locatie tussen de dorpskern van Zandvoort en de duinen. Hier vindt u de perfecte balans tussen rust, natuur en comfort.

Wordt dit uw nieuwe thuis aan de kust in het najaar van 2026?

Een luxe herenhuis aan de kust

Aan de groene Burgemeester Nawijnlaan in Zandvoort verrijst een stijlvol en duurzaam herenhuis met een royaal woonoppervlak van circa 201 m². De woning combineert flexibiliteit, comfort en toekomstbestendigheid op een unieke locatie, waar ruimte, rust en het Zandvoortse kustleven samenkomen. 

Volop ruimte en licht

De entree bevindt zich aan de voorzijde, via de voortuin. De ruime hal met toilet geeft toegang tot de royale woonkamer met erker aan de voorzijde. Aan de achterzijde ligt de semi-open keuken (nog te plaatsen), met directe toegang tot de zonnige achtertuin. Vanuit de keuken is er tevens toegang tot een multifunctionele kamer, ideaal als thuiswerkplek of tv-kamer.

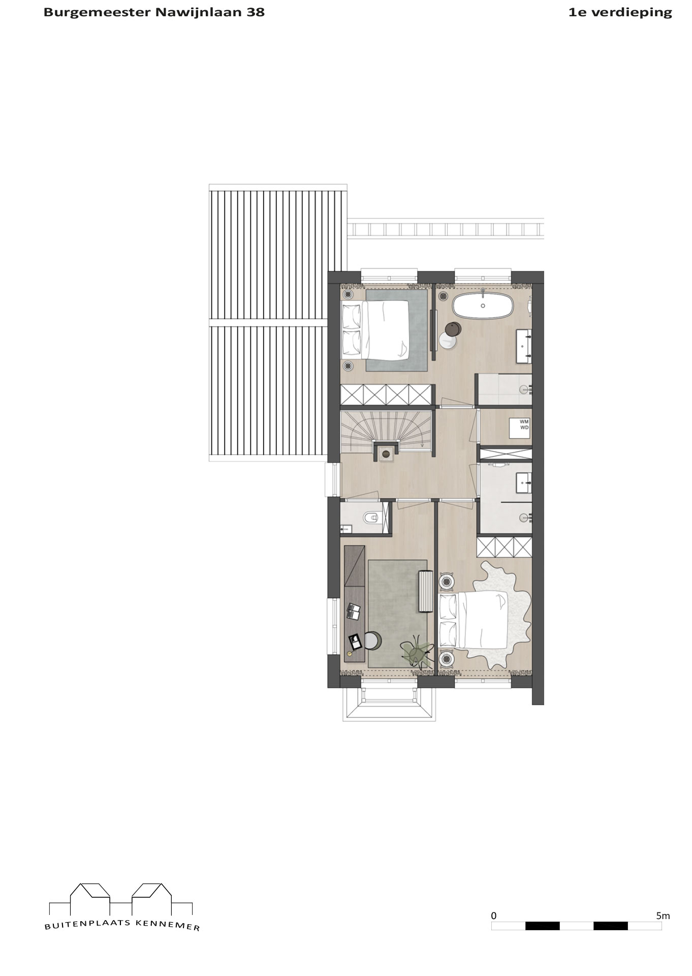
Op de eerste verdieping vindt u de hoofdslaapkamer met eigen badkamer en ruime walk-in closet. Daarnaast zijn er twee slaapkamers aan de voorzijde, een tweede badkamer, een separaat toilet en een praktische wasruimte. 

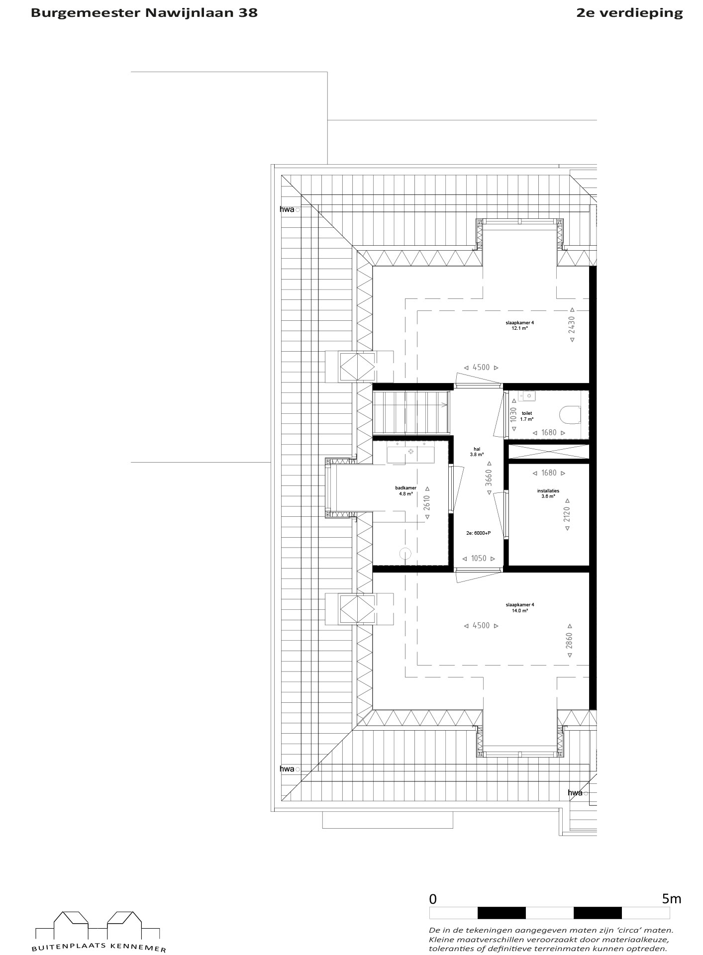
De tweede verdieping beschikt over nog twee slaapkamers, een derde badkamer, een apart toilet en een bergruimte met de warmteterugwininstallatie. Op de begane grond is bovendien een aparte berging aanwezig, ideaal voor fietsen of extra opslagruimte. 

Plattegronden

Omgeving

Buitenplaats Kennemer ligt op een unieke plek, waar de duinen, het strand en het dorpsleven samenkomen. Vanuit uw woning wandelt u zo de natuur in of richting het levendige centrum van Zandvoort, met gezellige terrassen, boetieks en restaurants.

Of u nu kiest voor een ochtendwandeling door de duinen, een middag op het strand of een avond uit eten in het dorp: alles ligt binnen handbereik. De perfecte balans tussen rust, natuur en levendigheid maakt dit een plek waar u zich direct thuis voelt.

Locatie

Onze partners

Maak kennis met onze geselecteerde experts. Zij kunnen helpen bij het realiseren van uw woondromen. Dankzij hun vakmanschap en ervaring kunt u rekenen op kwaliteit en maatwerk, precies afgestemd op uw wensen. Uiteraard staat het u vrij om voor deze partners te kiezen of uw eigen specialist in te schakelen voor een persoonlijke invulling.

Grand&Johnson

De bekende Amsterdamse ontwerpstudio Grand&Johnson is als interieurarchitect betrokken bij het project en kan naar wens en behoefte van u als koper(s) een maatwerk interieurontwerp realiseren. Ook kunnen zij u begeleiden in het maken van de keuzes voor de inrichting en stoffering van uw woning.
Mocht u geïnteresseerd zijn in aanvullend advies dan kunt u dit kenbaar maken aan de kopersbegeleider en zal u worden geïnformeerd over de mogelijkheden en bijbehorende kosten.

Biesot Tuinen en Parken

Voor het ontwerp en de aanleg van de buitenruimtes werken we samen met Biesot Tuinen. Deze ervaren tuinarchitecten staan bekend om hun strak stoere stijl. Hun ontwerpen kenmerken zich door een speels karakter en divers materiaalgebruik met een perfecte mix tussen oud én nieuw.

Biesot hecht veel waarde aan persoonlijk contact, flexibiliteit en vakmanschap. Al meer dan 70 jaar realiseren zij exclusieve tuinen die perfect aansluiten bij de wensen van hun opdrachtgevers. Van het eerste 3D-ontwerp tot de aanleg, styling en het onderhoud: Biesot verzorgt het gehele traject met zorg en precisie.

Betrokken partijen

Buitenplaats Kennemer is een ontwikkeling van: CBM Duurzaam Ontwikkelen B.V.

Meer informatie ontvangen of een bezichtiging plannen?

Contact

Klaar voor de volgende stap? In een persoonlijk gesprek bespreken we graag uw wensen en vragen. Samen kijken we hoe uw toekomstige woning vorm kan krijgen: precies zoals u het voor zich ziet.

Neem gerust direct contact met ons op of laat uw gegevens achter; wij nemen binnen 24 uur contact met u op.

Vul uw e-mailadres in en download de brochure direct.

Bedankt voor uw interesse. De brochure staat hieronder voor u klaar.